Landsborough (07) 5494 1577 Sales Enquiry

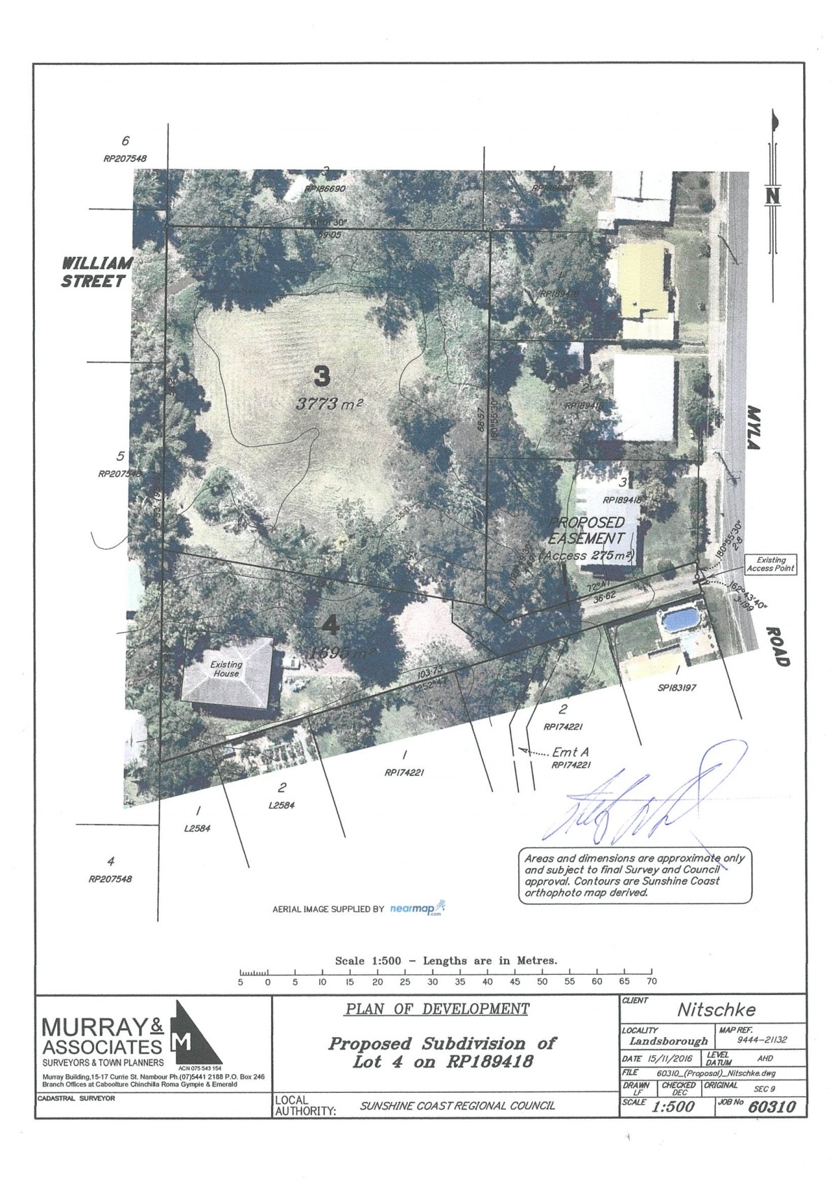
Proposed Lot 3 Myla Road, Landsborough, QLD 4550

Landsborough

Sold

WALK TO SCHOOL, SHOPS, RAIL

UNDER OFFER The owners of this 5468 M2 property zoned township residential have received approval to subdivide and are offering for sale a 3773 M2 vacant block ( almost an acre) under 10 minutes walking distance to town, shops and rail. The current owner will retain the house on 1695 M2.

Both properties are to be accessed via an easement from Myla Road, but the block to be sold also has frontage to William St and could be accessed from there by building a small bridge across the creek on the North West boundary, subject to Council approvals. It is a level block and the preliminary requirement prior to subdividing was to have the block built up above the 100 year flood level and this has been done.

It is rare to find such a large property tucked away, yet so close to school, rail and shops. The house on the property is currently tenanted so Notice will be required for inspections.

Reasonably priced at $350,000, this can only be a viable opportunity for the astute investor. Call Pauline Coultis at My Property Management & Sales on 5494 1577 or 0411 651 991.


Property Links

Location

Property Snapshot

Property Features

Inclusions Not Applicable

Exclusions Not Applicable

Land Content Battle Axe accessed by an easement off Myla Road

Land Size 3773 Square Mtr approx.

Frontage 68.57 meters Approx.

Property Contact

Your Details
Your Enquiry
  1. Please describe how we can be of assistance to you.

  2.  

    Would you like to join our mail list?

Submit